5 MVA 33/11 kV Oil-Immersed Power Transformer for South Africa Utility Project

5 MVA 33/11 kV Oil-Immersed Power Transformer for South Africa Utility Project

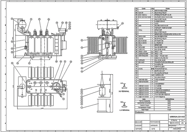
We delivered a 5 MVA three-phase oil-immersed step-down power transformer for a South Africa Utility Project application, rated 33 kV / 11 kV and manufactured to IEC 60076. The unit was configured with ONAN cooling, copper windings, Yd11 vector group, and an NLTC tap changer (±2×2.5%) on the HV side to support stable voltage regulation. […]
Application
Utility Distribution Network, Infrastructure / Commercial Power
Rated Voltage
HV: 33 kV LV: 11 kV
Rated Capacity
5 MVA
Transformer Type
Three-Phase Oil-Immersed Power Transformer

Project Background

This project required a reliable step-down power transformer to support a 33 kV substation distribution network in South Africa. The customer needed stable long-term operation, IEC-compliant design, and smooth on-site integration with existing 11 kV systems. We supplied a 5 MVA three-phase oil-immersed power transformer designed for continuous duty, with practical configuration for grid operation and maintenance.

Key Challenges

  • Meeting IEC 60076 requirements and utility-grade reliability expectations
  • Ensuring correct voltage regulation with NLTC tapping range on the 33 kV side
  • Controlling impedance and losses while keeping the transformer stable for long-term continuous operation

Scope of Work

  • Electrical parameter confirmation based on 33 kV / 11 kV network requirements
  • Core and winding design using copper conductors
  • Manufacturing of a three-phase oil-immersed power transformer (5 MVA)
  • Application of ONAN cooling system for continuous duty operation
  • Routine & acceptance testing prior to delivery (full factory test)
  • Packing, logistics coordination, and export delivery arrangement
  • Delivery-ready documentation support (nameplate, test reports, drawings)

On-Site Gallery

Engineering Considerations

The transformer was engineered and manufactured in accordance with IEC 60076, focusing on insulation coordination, thermal performance, and stable operation under utility conditions. It adopted copper windings and ONAN cooling for long service life. The unit was configured with Yd11 vector group to match common substation practices. An NLTC tap changer with ±2×2.5% tapping range on the HV side was applied to support voltage regulation during operation. Design impedance was set at 7% to ensure system compatibility and stable fault performance.

Project Outcome

The 5 MVA 33/11 kV transformer was successfully manufactured, fully tested, and delivered in 2025. Factory testing verified electrical performance, insulation integrity, and operational safety. The transformer was supplied in delivery-ready condition with standard accessories and documentation, meeting the confirmed specifications and supporting reliable commissioning for the customer’s substation service.

Planning a Similar Project?

Our engineering team specializes in custom transformer solutions for unique industrial requirements. Let's discuss your specific power infrastructure needs.

View All Projects