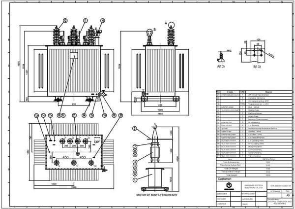
2000 kVA 33/0.4 kV Distribution Transformer for Ethiopia Utility Project
This project involved the manufacturing and delivery of a 2000 kVA three-phase oil-immersed distribution transformer rated 33/0.4 kV, supplied for utility distribution service and delivered to Ethiopia in 2025. The unit was manufactured in accordance with IEC 60076, configured with ONAN cooling, copper windings, and Dyn5 vector group to match typical distribution network requirements. The […]
Application
Utility Distribution Network
Rated Voltage
33 kV / 0.4 kV
Rated Capacity
2000 kVA
Transformer Type
Three-Phase Oil-Immersed Distribution Transformer
Project Background
The project required a medium-voltage distribution transformer for utility power supply applications, with clear requirements on electrical performance, efficiency, and long-term reliability.
The transformer was intended for integration into an existing public distribution network in Ethiopia, operating under standard utility conditions and complying with IEC distribution transformer standards.
The transformer was intended for integration into an existing public distribution network in Ethiopia, operating under standard utility conditions and complying with IEC distribution transformer standards.
Key Challenges
- Meeting IEC 60076 requirements for utility distribution transformers
- Controlling no-load and load losses to meet efficiency expectations
- Ensuring impedance and vector group compatibility with the existing network
Scope of Work
- Electrical parameter confirmation based on utility requirements
- Core and winding design using copper conductors
- Manufacturing of a three-phase oil-immersed distribution transformer
- Application of ONAN cooling system
- Routine factory testing prior to delivery
- Packaging and preparation for transportation
On-Site Gallery
Engineering Considerations
The transformer was engineered in accordance with IEC 60076, with particular attention to insulation coordination, impedance control, and thermal performance.
Copper windings were selected to support electrical stability and long service life. The transformer was configured with Dyn5 vector group to match common utility distribution network practices. An NLTC tap changer with a ±2×2.5% tapping range was applied to allow voltage adjustment during operation.
Loss performance was controlled to maintain no-load loss at or below 1667 W and load loss at or below 19800 W, supporting efficiency and operational reliability.
Copper windings were selected to support electrical stability and long service life. The transformer was configured with Dyn5 vector group to match common utility distribution network practices. An NLTC tap changer with a ±2×2.5% tapping range was applied to allow voltage adjustment during operation.
Loss performance was controlled to maintain no-load loss at or below 1667 W and load loss at or below 19800 W, supporting efficiency and operational reliability.
Project Outcome
The transformer was successfully manufactured, tested, and delivered in accordance with the confirmed technical specifications.
Factory testing verified electrical performance, insulation integrity, and operational safety. The unit was delivered ready for installation and commissioning within the utility distribution network.
Factory testing verified electrical performance, insulation integrity, and operational safety. The unit was delivered ready for installation and commissioning within the utility distribution network.
Planning a Similar Project?
Our engineering team specializes in custom transformer solutions for unique industrial requirements. Let's discuss your specific power infrastructure needs.